(Infopost)
Heute berichten wir über eine Bürgerinformationsveranstaltung, die fast unbemerkt von Öffentlichkeit und Presse am 28.10.2025 im Rathaus stattgefunden hat, aber ein interessantes Format mit Informationen zu den vorläufigen Planungen des Investors war.
Zur Erklärung:
Alle öffentlichen Informationen zu aktuellen Bauleitplanverfahren werden grundsätzlich seitens der Verwaltung auf der Homepage der Gemeinde Grasberg zur Verfügung gestellt.
Auch die Bekanntmachung vom 20.10.2025 zur 36. Änderung des Flächennutzungsplanes und Bebauungsplan Nr. 57 „Sondergebiet Einzelhandel West“ Bekanntmachung des Aufstellungsbeschlusses und die Bekanntmachung der frühzeitigen Bürgerbeiteiligung mit Veröffentlichung des Termines für eine Bürgerinformationsveranstaltung am 28.10.2025 um 19:00 Uhr mit Gelegenheit zur Äußerung und Erörterung der Vorentwurfsfassung ist dort zu finden.

Amtliche Bekanntmachung der Gemeinde Grasbeg – erschienen in der Wümme-Zeitung am 20.10.2025
Mit dieser amtlichen Bekanntmachung hat die Verwaltung die Öffentlichkeit darüber informiert, dass der Verwaltungsausschuss (nicht öffentlich) am 15.05.2025 die Aufstellung des Bebauungsplanes Nr. 57 „Sondergebiet Einzelhandel Grasberg West“ sowie die 36. Änderung des Flächennutzungsplanes beschlossen hat. „Inhalt der Planung ist es die planungsrechtlichen Voraussetzungen zur Ausweisung eines neuen Standortes für den Neubau eines Lebensmittelverbrauchermarktes zu schaffen“ (EDEKA).
(zum Thema siehe auch unseren Blogbeitrag vom 9. Mai 2025)
Gleichzeitig wird mitgeteilt, dasss im Zeitraum 20.10.2025-20.11.2025 die Planungsunterlagen (Vorentwurfsfassung) einzusehen sind Link und auch im Rathaus während dieser Frist Gelegenheit zur Einsichtnahme, Äußerung und Erörterung besteht.
Von einer Bürgerin haben wir von diesem Termin erfahren und haben mit Mitgliedern der Fraktion (Jörn Schumm, Thomas Malohn, Thomas Buse) und unseres Ortsverbandes, die auch BürgerInnen sind, an der Bürgerinformationsveranstaltung teilnehmen können.
Denn wir sind zwar politisch bewegt und bei den grünen aktiv aber in erster Linie natürlich GrasbergerInnen, die sich gerne dort informieren, wo BürgerInnen sind und wichtige Informationen geteilt werden.
Der Einladung gefolgt waren nur wenige weitere Bürger , die so kurzfristig von der Veranstaltung erfahren haben (teilweise am gleichen Tag per Whats-App, von jemanden der die Info geteilt hat) sowie die Betreiber des vorhandenen Edeka-Marktes, das Ehepaar Ernst.
Zunächst wurde durch das Planungsbüro Instara anhand einer kurzen Präsentation der Stand der Planung vorgestellt (die eingeholten Gutachten wurden nicht erläutert):
Es wurde mitgeteilt, dass das gesamte Areal im Bereich des Bebauungsplanes Nr.14 Gewerbegebiet Wörpedorfer Straße aus 1983 liegt, weitere Ausführungen entnehmt Ihr bitte den vorläufigen Planungsunterlagen.
Die zu beplandende Fläche von ca. 1,9 ha kann zu 90 Prozent versiegelt werden, der Markt wird ca 2.600 qm groß werden und die bisherige Verkaufsfläche des vorhandenen Marktes somit um ca 1.000 qm vergrößert. Die Lage des Marktes auf dem Areal ist noch nicht bekannt. Die gesamtte Fläche wird für Parkplätze benötigt. Eine Stichstraße mit Linksabbiegespur sind zum jetzigen Zeitpunkt geplant.
Hier teilen wir interessante Informationen aus der vorgestellten Präsentation:










Danach gab Herr Bischof als allgemeiner Vertreter der Bürgermeisterin den anwesenden Bürgern die Möglichkeit Fragen zu den vorliegenden Planungen an das Planungsbüro, Herrn Meyer und die Verwaltung zu stellen. Einige der Anregungen und Fragen geben wir Euch hier als Gedächtnisprotokoll ohne Anspruch auf Vollständigkeit wieder, da die Presse nicht anwesend war und bisher keine Veröffentlichung seitens der Verwaltung erfolgt ist, bzw. diese abzuwarten ist.:
- zunächst wurde seitens eines unserer OV-Mitglieder angemerkt, dass diese so wichtige Möglichkeit der Bürgerbeteiligung lediglich über die kleine Anzeige als amtliche Bekanntmachung und die Veröffentlichung auf der Homepage erfolgt ist. Es wurde angeregt, dass seitens der Verwaltung zu wichtigen Bürgerinformationsveranstaltungen auch z.B. über den Whats-App-Kanal der Gemeinde informiert werden könnte (ggf. mit Link zur Bekanntmachung). Damit auch die GrasbergerInnen von wichtigen Terminen erfahren, die nicht die Wümme-Zeitung abonniert haben oder amtliche Bekanntmachungen leicht überlesen um Politikverdrossenheit entgegenzuwirken und Transparenz von vorneherein für alle GrasbergerInnen herzustellen. Hierzu teilte Herr Bischoff mit, dass den an die Verwaltung gemachten Vorgaben zunächst mit der Veröffentlichung der amtlichen Bekanntmachung nachgekommen wird, dass er aber die Anregung für die Zukunft in Klärung nimmt.
- einige der gestellten und teilweise beantworteten Fragen waren:
- ist eine Anbindung für Fußgänger und Fahrradfahrer an das hinter der Wörpe liegende Wohngebiet geplant?
- Sind die Zahlen der Verkehrsuntersuchung (erstellt in der Pandemie 2021 / mit entsprechenden fiktiven Hochrechnungen) in dem von Verkehrsmengen zwischen 6000-7000 KfZ (auf 24Std.) auf der Wörpedorfer Straße die Rede ist noch aktuell? oder gibt es neuere Zählungen mit tatsächlichen Verkehrsbewegungen auch zu den Zeiten des Berufsverkehrs zwischen 16:00 und 17:00 Uhr? Welches Ereignis führte im abweichenden Jahr 2000 zu gezählten mit über 8.000 Fahrten (2010) ?
- Liegt das Planungsgebiet dann später im Ortskern (das Ortsschild steht aktuell in der Mitte des Planungsgebietes) dann zukünftig in einer 50er oder einer 70er Zone oder ist auch eine 30er-Zone aufgrund der geplanten Fußgängerquerung möglich? Mit welchen Verkehrsrückstau ist zu rechnen?
- Wird eine Fußgängerquerung zum vorhandenen Gehweg an der Wörpedorfer Str. geplant / ist ein Zebrastreifen oder eine Ampel zur sicheren Querung geplant?
- Wird ein neuer Geh- und Radweg auf der Seite des Marktes als direkte Anbindung an den Geh- und Radweg ab Mühlenviertel Richtung Kreisel geplant, um ansonsten notwendige Querungen zum vorhandenen Gehweg der Wörpedorfer Str. auf der anderen Seite zu vermeiden?
- Wurden / werden die Vorgaben des §32a der NBauO zur Solarbaupflicht auf Dächern und bei der Neuanlegung von Stellflächen (Parkplätzen) berücksichtigt?
- Weiter wurden verschiedene Fragen zum aktuellen Konzept für die Oberflächenentwässerung des Bebauungsgebietes (Stand 08 2025) gestellt. Hierbei wurde seitens des Fragenden zweifel an der Zukunftsfähigkeit und grundlegenden Funktionsfähigkeit des Konzeptes geäußert
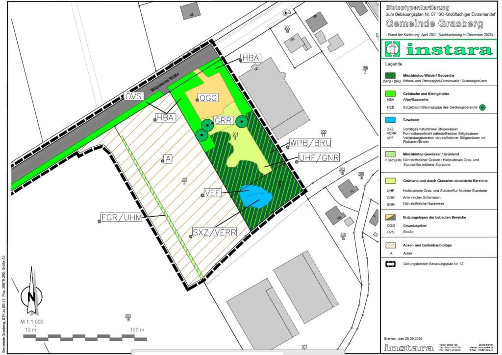
. - Werden der lt. Planung der dann nicht mehr vorhandene Baum- und Buschbestand auf dem jetzigen Praxis-Grundstück mit Biotop/Gewässer (siehe Biotoptypenkarte und Ausschnitt aus den Unterlagen, weiter unten) und schon gefällten Bäumen (zunächst gezählt) und dann auch nur ansatzweise ersetzt und sind großkronige Bäume auf dem dann fast vollständig versiegeltem Parkplatz oder an der geplanten Stichstraße geplant? Werden den Bauarbeiten große alte Straßenbäume zum Opfer fallen? Es wurde darum gebeten die wenigen Straßenbäume nach Möglichkeit zu erhalten und während der Bauphase zu schützen.
- Wieviele Bäume genau sollen seitens des Investors auf und an dem zu beplanenden Gelände (großflächig versiegelter Parkplatz) gepflanzt werden und sind statt kleinkronigen jungen Bäumen auch großkronige Bäume (als Schattenspender) vorgesehen?
- Wird seitens der Verwaltung geplant, einen Teil der über 30 älteren Bäume, die im Wiesendamm auf Veranlassung der Bürgermeisterin gefällt wurden z.B. an der geplanten Straße zu ersetzten (da bisher nur wenige Neupflanzungen erfolgt sind / wieviele der damals angekündigten Ersatzpflanzungen sind tatsächlich bisher erfolgt?)
- Ist ein Cafe als Treffpunkt mit Außenbereich geplant, können dafür Parkplätze geopfert werden?
- Mit welcher Planungszeit bis Fertigstellung des Marktes ist zu rechnen?

Das Verfahren ist noch ganz am Anfang und der Weg bis zur Umsetzung nimmt noch einiges an Zeit in Anspruch. Seitens des Investors wurde bei positivem Verlauf von ca 3-4 Jahren bis zur Fertigstellung gesprochen .
Weitere wichtige Planungs- und Beteiligungsschritte laufen parallel an oder folgen.
Auch die Einbindung der Landesstraßenbehörde wird notwendig, da es sich bei der Wörpedorfer Straße um eine Landesstraße handelt. Politische Entscheidungen müssen noch erarbeitet werden und können sich später auch an den Wünschen der BürgerInnen/der Fraktionen orientieren.
Einige gestellte Fragen und Anregungen sind wichtig und richtig und wir nehmen vorgebrachte Themen in die Fraktionsarbeit mit, um sie in unsere politische Arbeit mit einzubringen. Aspekte zu Anliegen der BürgerInnen, des Umwelt- Natur- und Gewässerschutzes sowie des immer wichtiger werdenden Hochwasserschutzes und eine nachhaltig gute Umsetzung sind uns dabei wichtig.
Die Wünsche des Ehepaar Ernst nach einer möglichst schnellen Lösung für einen größeren Markt sind für uns klar nachvollziehbar, denn im vorhandenen Markt ist wenig Platz und es muss viel nachgepackt werden, viele MitarbeiterInnen sind während der Öffnungszeiten in immer enger werdenden Gängen mit dem Packen betraut, und es wäre organisatorisch besser auch größere Mengen platzieren zu können. Jede/r einzelne der 85 MA würde auch zukünftig gebraucht. Sie waren vor Ort und brachten uns auf den neuesten Stand zu den vorhandenen Selbstscankassen und zur derzeitigen Situation im Markt. Wofür wir dankbar sind.
Als BürgerInnen, die ihr vielleicht nicht an dieser relativ spontanen Informationsveranstaltung teilgenommen habt weil Ihr von dem Termin nichts wusstet nutzt gerne noch bis zum 20.11.2025 die von der Verwaltung kommunizierte Möglichkeit zur Einsichtnahme der Planungsunterlagen (Vorfassung) und zur Äußerung.
Lt. Auskunft der Verwaltung werden die in diesem Zeitraum gestellten Fragen und Anregungen sowie die Antworten der Verwaltung des Investors und des Planungsbüros zusammengetragen, protokolliert und später im Laufe des Planungsverfahrens ebenfalls auf der Homepage der Verwaltung veröffentlicht.
In eigener Sache:
Grundsätzlich halten wir es bei allen für die Zukunft Grasbergs wichtigen Planungen und größeren Bauprojekten für besonders wichtig, dass wir in der Kommunalpolitik gemeinsam künftig gute Wege finden alle BürgerInnen besser zu informieren und zu beteiligen, damit Planungen und Überlegungen auch mit Hintergründen besser und gut nachvollziehbar sind.
Wir bedanken uns für Euer Interesse, jede Anregung und alle guten Gespräche.
Euer OV und die Fraktion
B90/Die Grünen Grasberg
Artikel kommentieren
Du musst angemeldet sein, um einen Kommentar abzugeben.